|
des FREUNDESKREIS SCHMALSPURBAHNEN KIEL |
| |
|

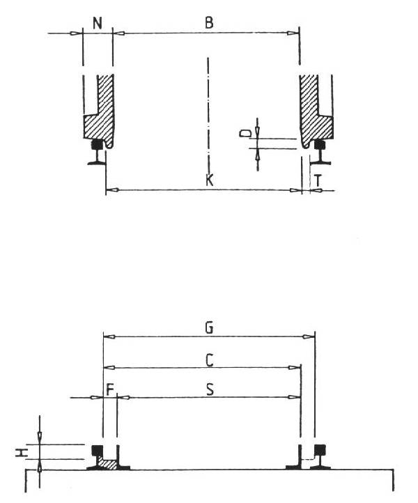
| Baugroesse | A max |
Y . |
J min |
B min |
L max |
U . |
W . |
X . |
|
|---|---|---|---|---|---|---|---|---|---|
| 1,0 | 1,5 | 1,2 | 10,2 | 15,8 | 20,2 +/- 0,2 | 17,4 + 0,4 | 20,6 + 0,6 | ||
| 1,0 | 2,0 | 1,2 | 14,3 | 20,8 | 25,5 +/- 0,2 | 22,4 + 0,4 | 25,8 + 0,8 | ||
| Om | 1,5 | 3,0 | 1,7 | 20,0 | 27,5 | 33,9 +/- 0,3 | 29,6 + 0,5 | 34,4 + 0,6 | |
| 1m | 2,0 | 4,0 | 2,2 | 28,4 | 39,0 | 46,4 +/- 0,4 | 41,0 + 0,6 | 47,0 + 0,4 | |
| IIm | 3,0 | 5,0 | 3,2 | 39,8 | 52,7 | 63,9 +/- 0,6 | 55,0 + 0,8 | 64,7 + 0,4 | |


| . | G . | C min | S max | F max | H min | K . | B . | N min | T max | D max |
|---|---|---|---|---|---|---|---|---|---|---|
| Om | 22,2 | 20,9 | 19,8 | 1,5 | 1,2 | 20,9 | 20,0 | 3,0 | 0,9 | 0,8 |
| Oe | 16,5 | 15,3 | 14,0 | 1,3 | 1,4 | 15,1 | 14,3 | 3,3 | 0,76 | 0,76 |
| Sm | 16,5 | . | . | . | . | . | . | . | . | . |
| Se | 12,0 | . | . | . | . | . | . | . | . | . |
| HOm | 12,0 | . | . | . | . | . | . | . | . | . |
| HOe | 9,0 | . | . | . | . | . | . | . | . | . |